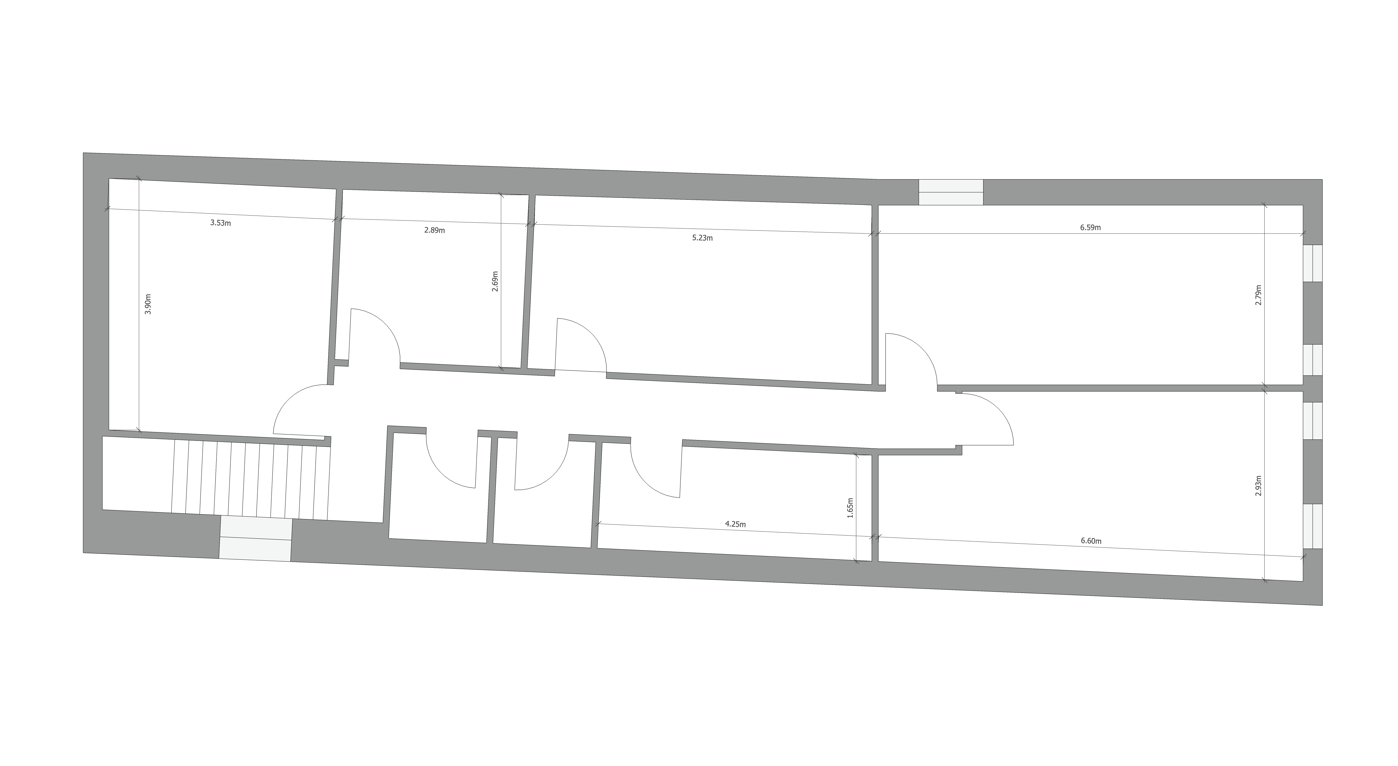
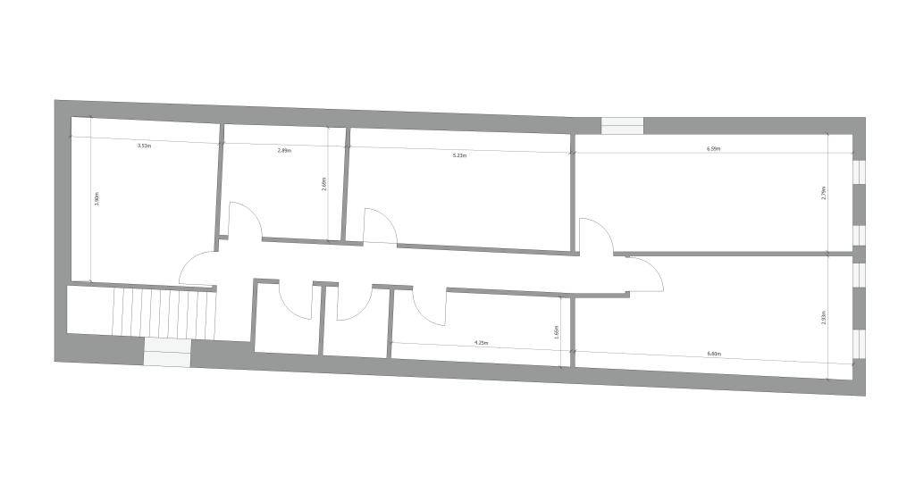
Abergavenny – Frogmore Street – Offices Posted on 2024-01-15 by stuarthogg Raglan House Chambers, 63 Frogmore Street, Abergavenny – accessed off Lewis’s Lane – Town centre OFFICES available TO LET – second floor- total 840 sq ft (78.08 sq m) – £7 per sq ft (£5,880 per annum) plus service charge (£300 pa) Share this:Tweet Related