
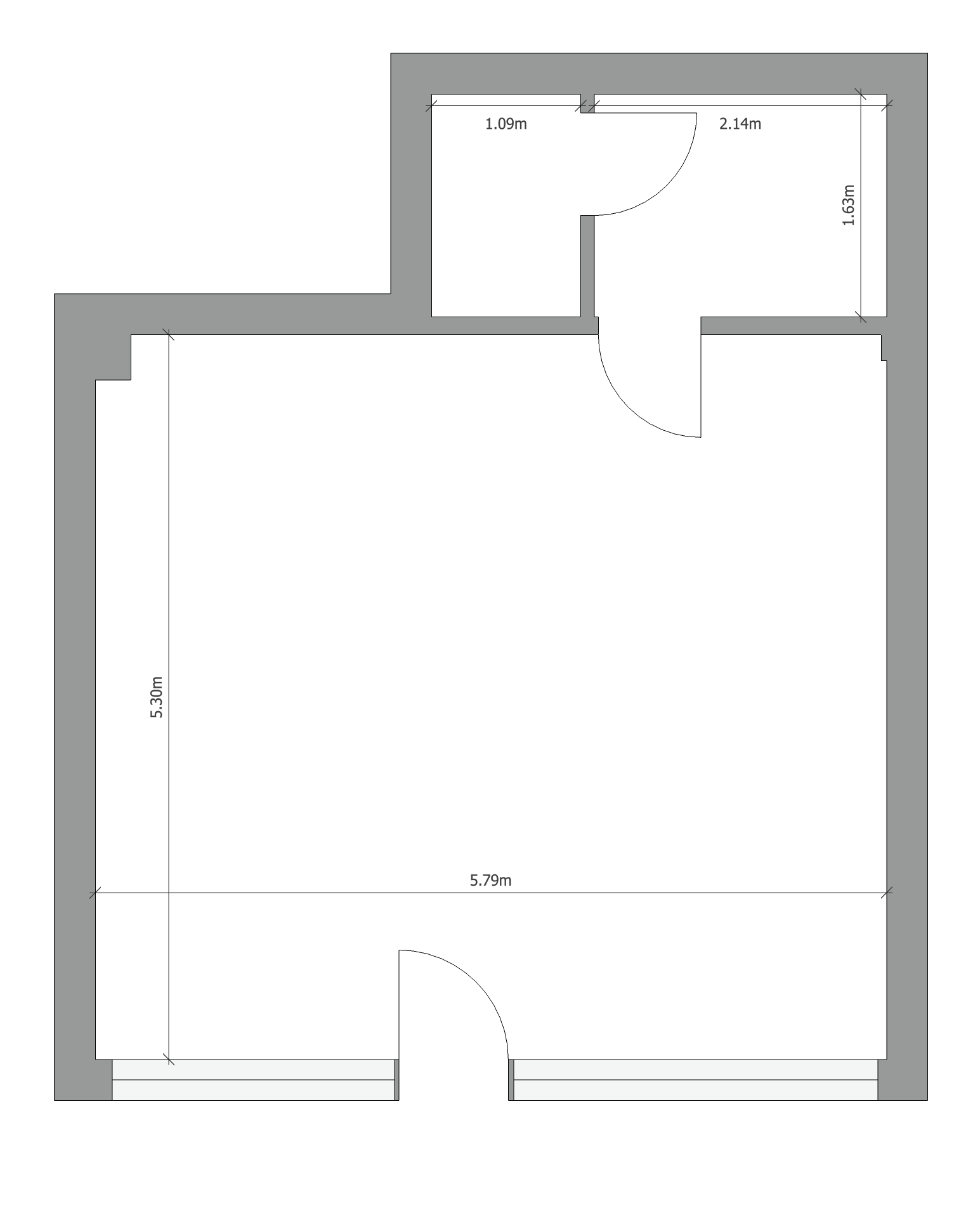
Unit 6 Penycamlais, Rich Way comprises a ground floor retail unit used as a beauty salon / hairdresser in a busy location, opposite Aldi supermarket and close to Theatre Brycheiniog, canal basin and other commercial and retail uses including Brecon Motors, Domino’s and with parking available nearby. The property has a sales area of 330 sq ft plus kitchenette and WC
Available TO LET.
For further details please contact Stuart Hogg on 07723 923770 or email: sh@stuarthogg.com




